
E 26001 - Einfamilienhaus
Residential Design
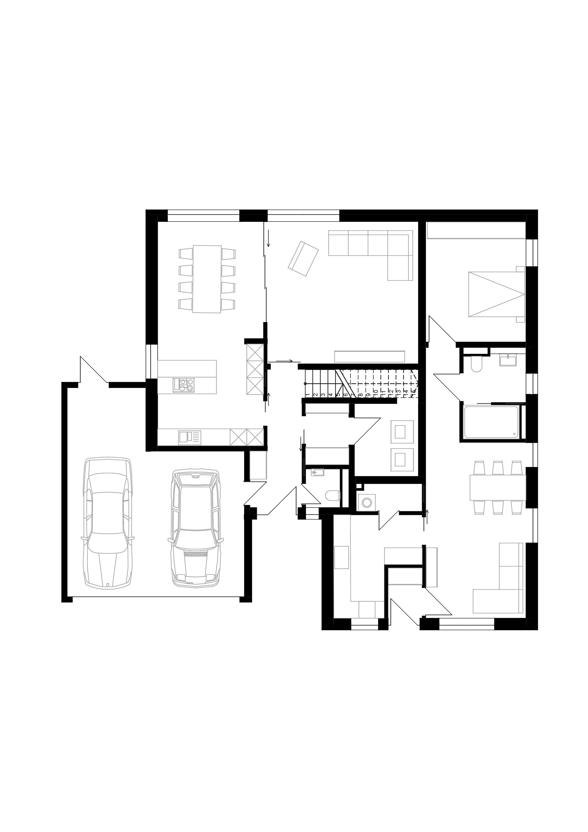
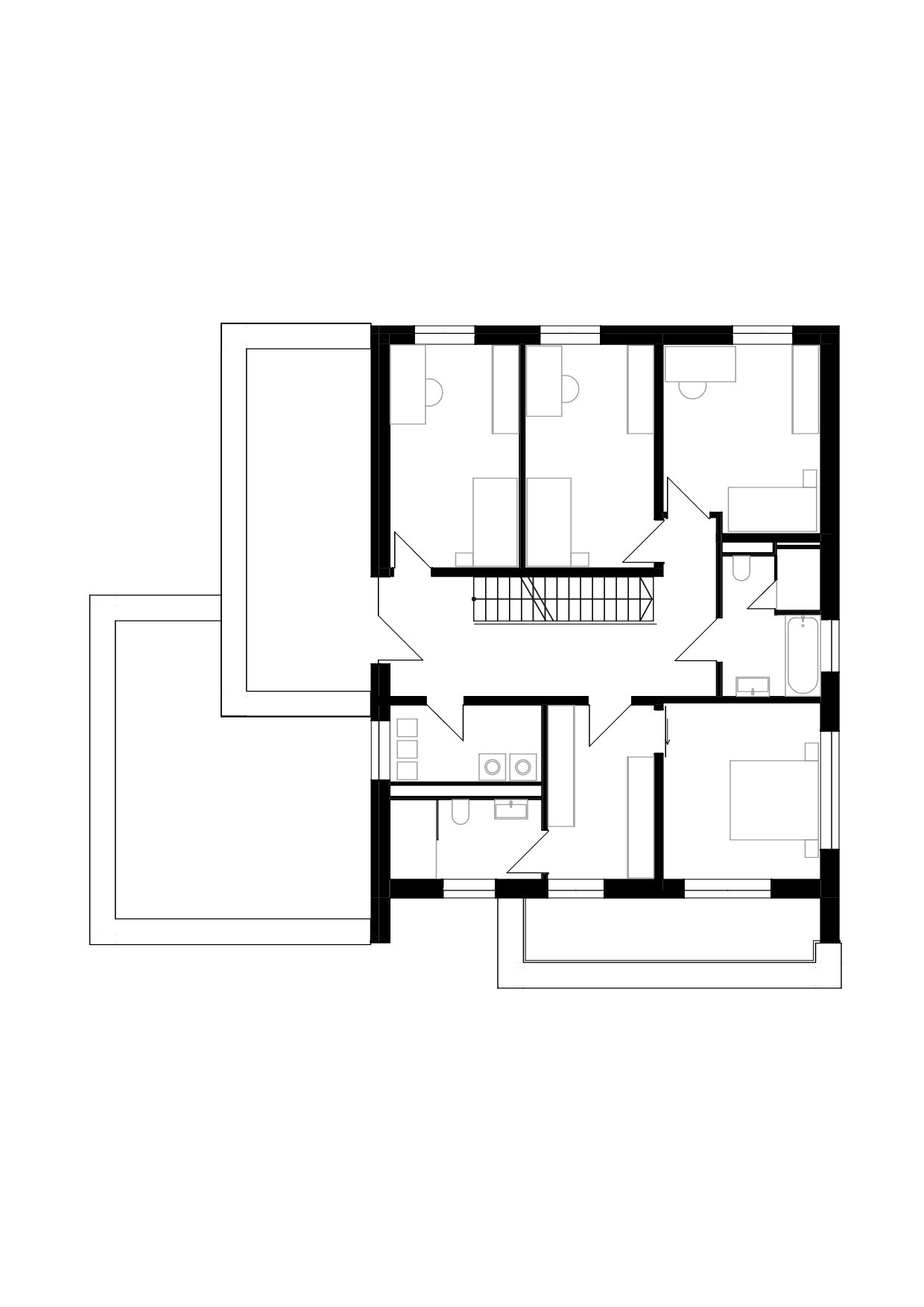
Dieses Einfamilienhaus mit Einliegerwohnung in Lindlar ist für eine Familie mit drei Kindern geplant. Das Haus wurde so geplant, dass die Privatsphäre beider Wohneinheiten gewahrt bleibt. Das Haus ist auf einem 560 m² großen Grundstück geplant, für das ein strenger Bebauungsplan gilt.

EG
OG
